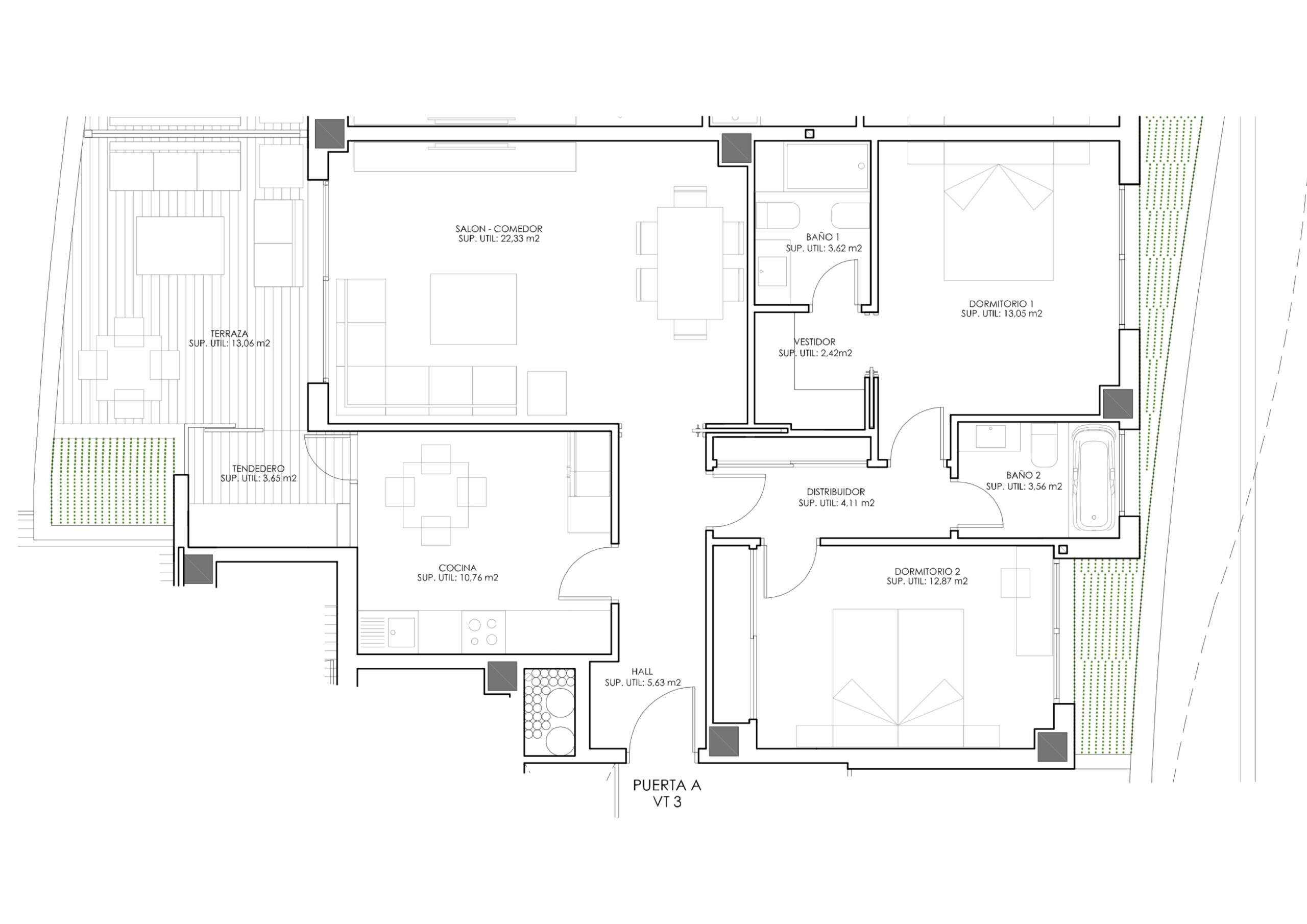
Descubre un hogar diseñado para quienes buscan excelencia y confort en cada detalle. Esta vivienda de 2 dormitorios y 2 baños —incluyendo un baño con bañera de hidromasaje— ofrece un espacio moderno y funcional. La cocina independiente está completamente equipada y cuenta con una práctica zona de lavandería con lavadora y secadora.
Disfruta de una amplia terraza con cerramiento Lumon, perfecta para vivirla todo el año.
El edificio cuenta con conserjería 24 h y dos amplias plazas de garaje. La urbanización es una de las más completas de Valdebebas: piscina de invierno y verano, pista de pádel, pista multiusos, gimnasio equipado, sauna, jacuzzi y solárium, todo pensado para una experiencia residencial de máximo nivel.
Un hogar excepcional en una de las zonas más exclusivas de Madrid.

















