Vive en Burgos, en una zona con todos los servicios y cerca de la universidad.
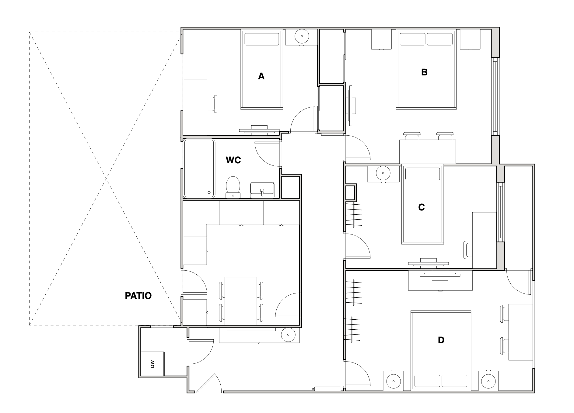
Este piso completamente reformado, de 4 habitaciones, 1 baño y un excepcional patio de uso privado, ofrece todas las comodidades: habitaciones espaciosas con armario, TV y cerradura en la puerta, wifi y un diseño moderno, ideal para disfrutar Burgos.








